The Gait Townhome – Thoughtful Design and Modern Comfort
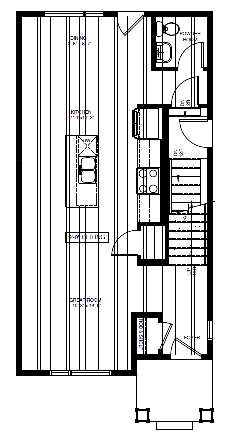
The Gait model offers 1,328 to 1,392 sq. ft. of thoughtfully designed living space, featuring 3 bedrooms and 2.5 bathrooms. With an open-concept main floor, this home makes it easy to stay connected with family and friends. The L-shaped kitchen at the back includes a large island with quartz countertops, perfect for meal prep and entertaining. A front entry closet and back mudroom provide practical storage, while a conveniently located powder room saves you a trip upstairs when hosting guests.
Upstairs, all three bedrooms are on the same level. The spacious primary bedroom at the back includes a walk-in closet and private ensuite bathroom for a relaxing retreat. The two additional bedrooms are bright and airy, each with large closets and oversized windows that fill the rooms with natural light. A second full bathroom and a laundry room are also conveniently located on this floor.
Included Features:
Front & side landscaping
Builder standard kitchen & laundry appliances
Concrete walk to parking pad
Concrete walk to side entrance (end units)
Rear stairs
12’ x 20’ parking pad (interior units)
16’ x 20’ parking pad (end units)
Building Details:
Building #1: Chester – 1,384 sq. ft., Windsor – 1,392 sq. ft.
Building #2: Ascot – 1,328 sq. ft., Chester – 1,384 sq. ft.
Please consult your sales representative for accurate images and more details.
As we continuously refine our home models, note that photos and virtual tours may not be 100% accurate.



These elevations are subject to change and these images do not form part of a contract. All illustrations are artist’s conception and may vary. Room dimensions are approximate. Windows and room sizes may vary with elevations. Mechanical equipment location and placement subject to change as required by building code and at discretion of builder. Furniture and appliance outlines for purpose of visualizing room layout only, furniture and appliances not included. Pacesetter Homes reserves the right to change material or specifications without notice.